Cầu nâng nhiều trụ hoạt động độc lập là một thiết kế của hãng chế tạo thiết bị sửa chữa ô tô nổi tiếng của Italy đó chính là hãng OMCN, sản phẩm này dành riêng cho những hệ thống xe cỡ lớn như xe tải, xe buýt, xe siêu trường siêu trọng tại các vùng mỏ.
Chính vì thế mà cầu nâng độc lập nhiều trụ ở Việt Nam còn được gọi bằng những cái tên như:
Cầu nâng xe tải
Cầu nâng xe buýt
Cầu nâng xe 20 tấn
....

Cầu nâng nhiều trụ hoạt động độc lập
Một vài lưu ý khi sử vận hành cầu nâng nhiều trụ hoạt động độc lập
- Những việc bắt buộc kiểm tra mỗi ngày trước khi sử dụng Cầu nâng nhiều trụ hoạt động độc lập đó là còi cảnh báo được đặt trên cột số 1 dấu hiệu di chuyển cho cột đơn .
- Khi sử dụng Cầu nâng nhiều trụ hoạt động độc lập không có người ở bên trong khu vực làm việc của thiết bị , nếu có phải dừng hoạt động của thiết bị .
- Trước khi nâng phải kiểm tra và chắc chắn rằng không có chướng ngại vật ở trên có thể cản trở khi nâng Cầu nâng nhiều trụ hoạt động độc lập lên .
- Không được sử dụng hệ thống Cầu nâng nhiều trụ hoạt động độc lập để nâng một bên của của phương tiện , nó có thể dẫn đến phương tiện bị mất cân bằng và có thể bị lật đổ dẫn đến hư hại cho thiết bị và người vận hành.

- Trước khi hạ thấp cầu nâng nhiều trụ hoạt động độc lập đảm bảo rằng không có đối tượng hoặc những trở ngại có thể can thiệp vào quá trình di chuyển của bàn nâng và phương tiện.
- Chú ý vị trí các cột của Cầu nâng nhiều trụ hoạt động độc lập, chắc chắn rằng tâm của lốp không vượt quá đường tâm của cánh tay nâng

- Trong trường hợp bị kẹt trong quá trình di chuyển của thiết bị Cầu nâng nhiều trụ hoạt động độc lập , một họat động hạ khẩn cấp có thể được thực hiện bằng việc làm theo hướng dẫn trong phần lưu ý hoặc liên hệ với phòng công nghệ của OMCN để biết chi tiết hướng dẫn .
- Đối với bất kỳ yêu cầu hoặc trợ giúp , xin vui lòng liên hệ với các trung tâm ủy quyền duy nhất đó chính là công ty cổ phần thiết bị Tân Phát để hỏi về phụ tùng chính hãng : danh sách phụ tùng đã có sẵn trong cuốn sổ tay hướng dẫn của hãng đi kèm theo mỗi loại sản phẩm.
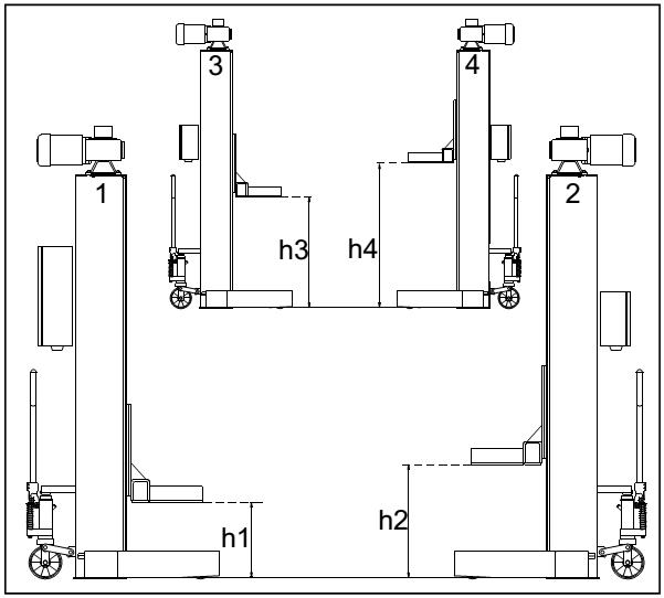
- Khi Cầu nâng nhiều trụ hoạt động độc lập được sử dụng một cặp cột trong quá trình nâng , không được phép để độ chênh lệch giữa các cột lớn hơn 100mm(hình 20 )
- Khi thiết bị nâng được sử dụng một cột riêng biệt ,sự khác biệt đối ứng về chiều cao so với sàn không bao giờ lớn hơn 100mm.
- Trong cả hai trường hợp không được phép vượt qúa quy định cho phép : điều này có thể tạo điều kiện nguy hiểm nghiêm trọng cho người sử dụng và thiết bị nâng .

Vận hành cầu nâng nhiều trụ hoạt động độc lập với xe tải liên kết
Quy trình nâng:
- Bật công tắc tổng của Cầu nâng nhiều trụ hoạt động độc lập theo chiều kim đồng hồ đến vị trí 1. Nếu nó là 6 hoặc 8 cột được điều chỉnh để hoạt động trên bảng điều khiển trên cả hai cột chính số 1 ;Nếu sau 2-3 giây đèn màu vàng vẫn sáng : xoay công tắc chính theo chiều kim đồng hồ đến vị trí 2 .Nếu vấn đề vẫn tồn tại , xin vui lòng tham khảo các chức năng bất thường.

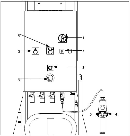
1.Công tắc chính của Cầu nâng nhiều trụ hoạt động độc lập
2.Đèn cảnh báo màu vàng
3.Công tắc lựa chọn chức năng hoạt động
4.Nút nâng
5.Nút hạ
6.Đèn cảnh báo màu đỏ
7.Âm thanh cảnh báo (Buzzer)
8.Nút dừng khẩn cấp
- Xoay công tắc lựa chọn chức năng đến vị trí 1 ( Kích hoạt toàn bộ các cột ) nếu 6 -8 cột được sử dụng,làm theo mô tả được cung cấp trong hình
- Kết nối bảng điều khiển nút nhấn để kết nối đến phần bên dưới của bảng điều khiển trên cột nơi được chọn để cung cấp lệnh và điều khiển thiết bị nâng .
- Nhấn nút sau khi đạt được tới công tắc giới hạn thiết bị nâng sẽ tự động dừng.
- Trong trường hợp di chuyển bị khóa cứng của thiết bị điện chỉ cho phép hạ thấp .
Quy trình hạ:
- Kiểm tra rằng công tắc lựa chọn chức năng được cài đặt ở vị trí 1 .Nếu 6-8 cột nâng được thiết lập để sử dụng, làm theo hướng dẫn được cung cấp ở hình 13.
- Nhấn nút hạ, sau khi đạt được giới hạn của công tắc giới hạn , thiết bị sẽ tự động dừng lại.
- Khi bạn có ý định hạ toàn bộ càng nâng xuống đất, nhấn và dữ nút hạ xuống cho đến khi đèn màu đỏ nháy nhanh: hiển thị này có ý nghĩa toàn bộ càng nâng đạt được vị trí cuối cùng của quy trình và bộ đến của thiết bị đã được thiết lập về vị trí không .
- Tiếng còi cảnh báo cũng hoạt động khi thiết bị đạt được vị trí không
- Khi vật cản được tìm thấy dưới gầm của phương tiện, việc hạ sẽ được tự động dừng lại trong điều kiện như vậy chỉ chu trình nâng lên được cho phép có thể di chuyển .
Trong quá trình vận hành nếu nút nhấn khẩn cấp ở trên cột chính số 1 hoặc được gá trên bảng điện trên mỗi cột được ấn xuống ở bất kỳ thời gian nào, thiết bị nâng sẽ dừng lại. Để khởi động lại cầu :loại bỏ các lý do cho các trường hợp khẩn cấp .Sau đó lần lượt quay ngược chiều kim đồng hồ để thiết lập lại nó và tiếp tục sử dụng bình thường.
Vận hành cầu nâng nhiều trụ hoạt động độc lập với một cặp cột
Đặc biệt chú ý :Hoạt động không đúng có thể dẫn đến tình huống nguy hiểm nghiêm trọng cho người vận hành và Cầu nâng nhiều trụ hoạt động độc lập.

Cài Đặt Vị Trí:
- Lựa chọn cặp cột của Cầu nâng nhiều trụ hoạt động độc lập mà bạn muốn sắp sếp sử dụng với công tắc lựa chọn chức năng hoạt động
- Vị trí 2 –Cột 1-2 làm việc đồng thời /cột 3-4 dừng lại
- Vị trí 3 - Cột 1-2 dừng lại /cột 3-4 làm việc đồng thời
- Kết nối bảng điều khiển nút nhấn tới phần dưới của bảng điện ở trên cột nơi có thể được lựa chọn để điều khiển và kiểm soát thiết bị nâng hạ đã được lựa chọn trước đó .
- Di chuyển càng của cặp cột tới chiều cao yêu cầu bằng việc nhấn nút nâng hoặc nút hạ
- Khi vị trí đạt được yêu cầu, thiết lập lại công tắc lựa chọn chức năng hoạt động đến vị trí 1 (Kích hoạt toàn bộ cột ). Trong điều kiện này toàn bộ càng nâng di chuyển bằng việc giữ thiết lập vị trí không thay đổi .
Khi nâng một trong những công tắc giới hạn hành trình bị tách ra khóa cứng toàn bộ tay nâng, theo chỉ dẫn để bảo vệ cầu nâng nhiều trụ hoạt động độc lập.
Khi hạ cầu nâng nhiều trụ hoạt động độc lập sự di chuyển dừng lại khi toàn bộ cánh tay nâng được nhả ra từ công tắc hành trình của chúng, sự thiết lập của cánh tay nâng sẽ được hoàn thiện khi đèn đỏ nhấp nháy nhanh .
Phục Hồi Hệ Thống Nâng của cầu nâng nhiều trụ hoạt động độc lập
Hệ thống nâng có thể được phục hồi bằng tay :
- Hạ thấp cặp 3-4 hoặc 1-2 cho đến khi cả hai cặp cột cân bằng.
- Kiểm tra rằng đèn đỏ nháy nhanh ( thiết lập lại chính xác ) một công tắc hành trình dưới đạt được vị trí : nếu đèn hiển thị màu đỏ không nhấp nháy, càng nâng phải được hạ xuống công tắc giới hạn dưới của chúng, thực hiện khôi phục cho mỗi cột
Vận hành cầu nâng nhiều trụ hoạt động độc lập với một cột đơn
Thiết Lập Thiết Bị Nâng Với Cột Đơn

- Thiết lập chức năng hoạt động với công tắc lựa chọn ở vị trí 4 , toàn bộ cột sẽ được thiết lập đứng yên .
- Kết nối bảng điều khiển nút ấn tới tphần dưới của bảng điện trên cột .
- Di chuyển càng nâng của cột được lựa chọn tới chiều cao yêu cầu bằng việc nhấn nút nâng sự di chuyển sẽ được kèm theo một âm thanh cảnh báo
- Sau khi thiết lập được chiều cao yêu cầu cho mỗi càng nâng , thiết lập công tắc lựa chọn đến vị trí 1 (kích hoạt toàn bộ các cột ): toàn bộ bàn nâng bắt đầu di chuyển cùng thời gian để thiết lập cho thiết bị nâng hạ.
- Vượt quá 100mm khoảng cách giữa mức di chuyển thấp nhất và cao nhất là không được phép
Khi việc di chuyển hạ xuống cầu nâng nhiều trụ hoạt động độc lập dừng lại khi toàn bộ cánh tay nâng đã di chuyển đến công tắc giới hạn dưới, việc thiết lập lại cần được thực hiện một cách cẩn thận khi đèn đỏ nhấp nháy nhanh chóng.
Phục Hồi Bàn Nâng Cầu nâng nhiều trụ hoạt động độc lập
- Phục hồi bàn nâng của Cầu nâng nhiều trụ hoạt động độc lập là vị trí mà toàn bộ bàn nâng được hạ xuống vị trí công tắc hành trình gới hạn dưới.
- Kết nối bảng điều khiển nút nhấn tới bảng điện trên cột cái đã được hạ thấp tới công tắc gới hạn dưới.
- Nhấn nút “Lowering” và thực hiện các hoạt động trước đó với mỗi cột.
- Việc thiết lập bàn nâng cần được thực hiện cẩn thận khi đèn đỏ nhấp nháy liên tục: Nếu hiển thị này không nhấp nháy, kiển tra vị trí của cột có thể không được hạ thấp xuống công tắc giới hạn dưới, thực hiện di chuyển nó xuống công tắc giới hạn dưới thực hiện di chuyển cột đơn như mô tả ở phần trước.
Sử lý cầu nâng nhiều trụ hoạt động độc lập khi có cảnh báo
Nếu có thông tin khẩn cấp hoặc hiển thị cảnh báo bạn cần hạ tải trên thiết bị xuống và thực hiện theo hướng dẫn dưới đây.
Lỗi cân bằng Cầu nâng nhiều trụ hoạt động độc lập bị khóa cứng:

- Xoay công tắc lựa chọn tới vị trí 4(di chuyển từng cột ).
- Kết bảng điều khiển nút nhấn tới bảng điện tử trên cột nơi phải được hạ xuống thấp tới công tắc giới hạn.
- Nhấn nút hạ thấp trên bảng điều khiển nút nhấn.
- Hạ tay nâng xuống vài cm
- Lặp lại hoạt động trên mỗi cột cho đến khi toàn bộ cột nâng được hạ xuống mức cuối cùng của công tắc giới hạn.
- Tiếp theo kiểm tra khoảng cách giữa cảm biến và tấm striker nó xấp xỉ khoảng 2-3mm. Nếu nó không đúng thì nới khoảng cách này bằng cách nới cảm biến và điều chỉnh khoảng cách sau đó siết chặt đại ốc cố định cảm biến lại.
- Chắc chắn rằng bộ đếm số vòng đã được làm sạch. Nếu không thì phải làm sạch nó bằng vải mềm và khô.
Cầu nâng nhiều trụ hoạt động độc lập bị khóa cứng do có vật cản trong quá trình hạ xuống
- Trong chế độ hoạt động của cột đơn nâng càng nâng trên cột lên một vài mm và di chuyển vật cản ra khỏi vùng hoạt động của thiết bị.
- Làm theo quy trình trong mục trước “ Alignment Error”, di chuyển toàn bộ càng nâng xuống công tắc giới hạn dưới để thực hiện việc thiết lập lại hệ thống điều khiển cân bằng.
Hư hỏng leadnuts của cầu nâng nhiều trụ hoạt động độc lập
- Chỉ có thể di chuyển hạ xuống
- Hạ tải xuống đất như bình thường.Kiểm tra trạng thái mòn của leadnut’s. Nếu nó bị quá mòn, nó cần được thay thế bằng việc gọi điện cho nhà cung cấp .
Di chuyển cầu nâng nhiều trụ hoạt động độc lập khi không có nguồn điện.
- Nếu bảng điện tử bị mất điện do lỗi nguồn, mỗi cột đơn có thể được hạ xuống bằng tay bằng việc làm theo hướng dẫn hoạt động ở dưới.
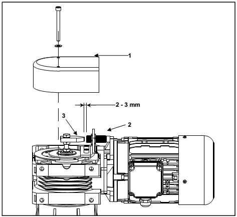
- Tháo tấm bảo vệ động cơ điện bằng việc xoay ốc vít.
- Tháo đai ốc khóa sử dụng cờ lê lục giác để xoay và nhả phanh an toàn(3 hình 28).
- Xoay cánh qoạt để hạ càng nâng xuống.
- Thực hiện hoạt động trên toàn bộ các cột để hạ toàn bộ các càng nâng xuống, thực hiện hạ toàn bộ càng nâng xuống tuần tự để đảm bảo độ chênh lệch về độ cao giữa các càng nâng không vượt quá giới hạn.
- Trong quá trình hạ càng nâng của mỗi cột, phải thực hiện cẩn thận không để độ chênh lệch giữa các càng nâng vượt quá 100mm .Nếu nó vượt quá giá trị cho phép có thể dẫn đến nguy hiểm phương tiện trên thiết bị nâng có thể bị mất cân bằng, dẫn đến bị lật đổ.
- Khi càng nâng đạt đến công tắc gới hạn dưới, xoay đai ốc khóa về vị trí ban đầu trước khi xoay cái phanh hãm về vị trí ban đầu.
- Chắc chắn rằng khoảng cách giữa phanh và động cơ và bề mặt của motor là 0.3mm.
- Lắp tấm bảo vệ motor cố định của Cầu nâng nhiều trụ hoạt động độc lập bằng ốc vít.

- Trong trường hợp có sự nghi ngờ không chắc chắn, không nên cố gắng can thiệp, hãy liên lạc với bộ phận kỹ thuật của nhà cung cấp.
Quy trình bảo dưỡng cầu nâng nhiều trụ hoạt động độc lập
Công việc bảo dưỡng bao gồm các công việc bôi trơn và các hoạt động điều chỉnh cần được tiến hành thường xuyên trong thời gian cố định để đảm bảo rằng máy hoạt động chính xác và an toàn.Bất kỳ hoạt động không được đề cập đến trong quá trinh bảo dưỡng này được coi là bất thường, và chỉ có thể được kiểm tra bởi các kỹ sư có chuyên môn về thiết bị Cầu nâng nhiều trụ hoạt động độc lập
Việc kiểm tra và bảo dưỡng định kỳ có tầm quan trọng rất lớn và nó cần được thực hiện bởi chuyên viên kỹ thuật của OMCN hoặc nhân viên được đào tạo bởi nhà sản xuất
- Thời gian bảo dưỡng Cầu nâng nhiều trụ hoạt động độc lập quy định bởi các yếu tố khác nhau, chẳng hạn như điều kiện môi trường (hiện diện của bụi): sử dụng cường độ cao, nhiệt độ thay đổi thường xuyên, trong điều kiện như vậy, thời gian này nên được điều chỉnh sao cho phù hợp với từng xưởng dịch vụ sử chữa ô tô
- Công việc làm sạch và bảo dưỡng phải được thực hiện cẩn thận và an toàn, đến bước cuối cùng này, trước khi bắt đầu bất kỳ công việc nào trên cầu, hãy tăt nguồn cung cấp bằng việc xoay công tắc tới vị trí “off “ để khóa nó.
Trên đây là những chia sẻ của chúng tôi về thiết bị cầu nâng nhiều trụ hoạt động độc lập ngoài ra các bạn có thể tham khảo thêm nhiều loại cầu nâng khác tại các bài viết bên dưới:
>>> Những loại cầu nâng không thể thiếu tại các trung tâm sửa chữa
>>> Cầu nâng 2 trụ nào tốt nhất?
>>> Cầu nâng 1 trụ rửa xe Ấn Độ
>>> Các thiết bị sửa chữa ô tô cần thiết khi mở xưởng
Liên hệ Hostline :0902 279 858 để nhận được tư vấn chuyên sâu về thiết bị và quy trình mở xưởng sửa chữa ô tô
-----------------------------------------------------------------------------
Ghi rõ nguồn gốc khi chia sẻ hoặc sao chép lại bài viết
"Công ty cổ phần thiết bị Tân Phát "

Hỗ trợ
Hướng dẫn







Bình luận
Để lại bình luận