Cầu nâng 4 trụ Corghi là thiết bị chuyên dùng để nâng ô tô lên cao nhằm mục đích kiểm tra bảo dưỡng sửa chữa, cầu nâng 4 trụ này nằm trong hệ thống cầu nâng ô tô rất đa dạng và phong phú của nhà sản xuất thiết bị sửa chữa ô tô có quy mô hàng đầu thế giới Corghi đến từ Italy.
Hôm nay công ty cổ phần Thiết bị Tân Phát nhà phân phối chính hãng các sản phẩm của Corghi tại Việt Nam xin giới thiệu đến các bạn một vài tính năng cũng như cấu tạo chung của cầu nâng 4 trụ phổ thông đang được sử dụng trên thị trường.
Tất nhiên là vẫn có một vài chủng loại cầu nâng được đặt hàng chế tạo riêng vào nhiều mục đích thì không phải cái nào cũng mang những đặc điểm như bên dưới. Ở đây chúng tôi chỉ muốn nói đến là hệ thống cầu dành cho các trung tâm dịch vụ sửa chữa ô tô.

Cầu nâng 4 trụ Corghi
Một vài Model của cầu nâng 4 trụ Corghi mà chúng ta thường thấy
| Thông số |
Đơn vị |
M4000AB |
M 5000 A |
M5000AB |
|
Tải trọng tối đa của cầu nâng 4 trụ |
Kg |
4000 |
5000 |
|
|
Thời gian nâng của cầu nâng 4 trụ |
S |
33 |
42 |
|
|
Thời gian hạ của cầu nâng 4 trụ |
S |
34 |
34 |
|
|
Chiều cao hiệu dụng nhỏ nhất |
Mm |
153 |
153 |
|
|
Chiều cao hiệu dụng lớn nhất |
Mm |
1953 |
1953 |
|
|
Kích thước bàn nâng của cầu nâng 4 trụ |
Mm |
5060x630 |
5360x630 |
|
|
Kích thước bàn nâng hiệu dụng |
Mm |
4800x630 |
5100x630 |
|
|
Chiều dài cầu nâng trên sàn gồm cả đường dẫn lên cầu |
Mm |
5888 |
6188 |
|
|
Chiều rộng cầu |
Mm |
3300 |
3300 |
|
|
Khoảng cách tối thiểu giữa các cột |
Mm |
2950 |
2950 |
|
|
Chiều cao cầu nâng |
Mm |
2300 |
2300 |
|
|
Mô tơ 3 pha |
Volt - Hz - Amp Volt - Hz - Amp |
230/400-50-12.8/7.4 230/400-60-10.5/7.1 |
||
|
Công suất mô tơ |
kW/HP |
2.6-3.5 |
||
|
Mô tơ 1 pha |
Volt - Hz – Amp |
230-50- 15.9 |
||
|
Công suất mô tơ |
kW/HP |
2.2/3.0 |
||
|
Áp suất thủy lực tối đa |
Bar |
180 |
230 |
|
|
Điện áp mạch điều khiển |
Volt |
24 |
24 |
|
|
Trọng lượng 1 cột |
Kg |
34 |
34 |
|
|
Trọng lượng 1 dầm ngang |
Kg |
66 |
66 |
|
|
Trọng lượng dầm dọc cố định |
Kg |
490 |
429 |
504 |
|
Trọng lượng dầm di động |
Kg |
376 |
313 |
389 |
|
Trọng lượng đóng gói |
Kg |
1230 |
1106 |
1257 |
|
Trọng lượng của bộ điều khiển (không có dầu) |
Kg |
20 |
20 |
|
|
Dầu thủy lực yêu cầu |
Type |
ESSO NUTO H32 hoặc tương đương (ISO VG32) |
||
|
Lượng dầu cần thiết |
Lt |
10 |
10 |
|
|
Bu lông nền (số lượng và chủng loại) |
No. 16 |
HILTI HSA-AM16x140/25 (hoặc tương đương) |
||
|
Độ ồn trung bình LpAm |
dB(A) |
68.2 |
68.2 |
|
|
Độ ồn trung bình ở phân xưởng làm việc LpA |
dB(A) |
72 |
72 |
|
|
Độ ồn LwA |
dB(A) |
88.6 |
88.6 |
|
Mô tả về cầu nâng 4 trụ Corghi

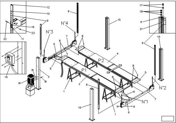
Hình 1 cầu nâng 4 trụ Corghi
|
1. Cột 1 2. Cột 2 3. Cột 3 4. Cột 4 5. Dầm ngang bên điều khiển 6. Dầm ngang đối diện bên điều khiển 7. Dầm dọc cố định 8. Dầm dọc di động 9. Tấm dẫn lên cầu 10. Chặn bánh xe 11. Mặt cầu 12. Chỗ đặt đĩa lái 13. Tấm trượt 14. Tem thiết bị 15. Bộ điều khiển thủy lực |
16. Tủ điện điều khiển FCE: công tắc an toàn FCA: công tắc giới hạn chiều cao tối đa FC1,FC2,FC3,FC4: công tắc giới hạn an toàn nhả cáp EM1,EM2,EM3,EM4: nam châm điện nhả khóa an toàn 17. Công tắc khẩn cấp 18. Đèn cảnh báo điện áp 19. Cầu chì 20. Nút nâng 21. Nút hạ 22. Nút hạ cầu hoàn toàn 23. Nút nhả khóa an toàn cơ khí 24. Công tắc lựa chọn đi tắt qua khóa an toàn
|
Thực hiện những quy định về an toàn để tránh tại nạn
Những điều sau được cho phép:
- Sử dụng cầu nâng 4 trụ Corghi cho kiểm tra, bảo dưỡng và sửa chữa ô tô
- Nâng xe đúng với tải trọng giới hạn và phân phối tải trọng như trong catalogue
- Chỉ nhân viên được ủy quyền, có tình trạng sức khỏe tốt, trách nhiệm và được đào tạo đầy đủ mới được phép sử dụng cầu nâng 4 trụ Corghi
- Chỉ vận hành cầu nâng 4 trụ Corghi sau khi đã đọc kĩ, hiểu và hấp thụ được nội dung của hướng dẫn này
- Chỉ sử dụng cầu nâng ở khu vực khép kín, chống lại các tác nhân môi trường như: mưa, tuyết, gió…
- Chỉ 1 người vận hành tại một thời điểm có thể sử dụng cầu nâng ở khu vực xác định, gần bảng điều khiển
Những điều không được phép:
- Công việc lắp đặt và bảo dưỡng cầu nâng 4 trụ Corghi bắt buộc phải thực hiện bởi nhân viên có trình độ, và phải phù hợp với chỉ dẫn trong sách
- Trước khi lắp cầu nâng 4 trụ Corghi, bạn bắt buộc phải kiểm tra nơi mà ban muốn đặt thiết bị. Nó phải thông thoáng và có ánh sáng (tránh ánh sáng trực tiếp)
- Kiểm tra nền móng nơi lắp cầu nâng 4 trụ Corghi. Nó phải cứng chắc, thăng bằng theo mọi hướng
- Kiểm tra nền móng được xây dựng để chịu đựng tải trọng cho phép tối đa bao gồm cầu nâng, trên khu vực chứa cầu nâng
- Máy phải đặt xa nguồn nhiệt, hoặc thiết bị phát ra bức xạ điện từ
- Định vị cầu nâng 4 trụ Corghi sao cho trong quá trình vận hành tiêu chuẩn, với xe đặt trên nó, nó không gây trở ngại cho bộ phận cố định hoặc di chuyển. Đặc biệt quan tâm đến điện, nước và khí
- Vận hành cầu nâng 4 trụ Corghi phải được thực hiện trong tình trạng tuyệt đối an toàn phù hợp với thiết bị cầu nâng và quy định hiện hành của quốc gia
- Trước khi dùng cầu nâng 4 trụ Corghi phải kiểm tra tính nguyên vẹn của các yếu tố nâng
- Trước khi dùng cầu phải kiểm tra thiết bị an toàn được lắp đầy đủ không, và ở trong tình trạng tốt
- Xe được nâng lên từ những điểm đặt lực được quy định bởi nhà sản xuất
- Khi nâng xe lên, sau 200 mm đầu tiên, và trước khi tiếp tục nâng, phải kiểm tra sự cân bằng tải trọng theo mọi hướng
- Cầu nâng 4 trụ Corghi phải được cố định với sàn nhà bằng bu lông nền, chủng loại của nó theo yêu cầu của nhà sản xuất
- Trước khi làm việc, cầu nâng 4 trụ Corghi phải lắp thiết bị an toàn cơ khí với yêu cầu đặc biệt
- Trước khi làm việc, cầu nâng phải ngắt điện bằng cách xoay công tắc trên bảng điều khiển về vị trí 0
- Bạn phải kiểm tra việc tháo 1 số bộ phận của xe không gây mất cân bằng tải trọng
- Trước khi bắt đầu hạ cầu, bạn phải kiểm tra chuyển động của cầu nâng. Nếu như lỗi, ấn công tắc khẩn cấp ngay lập tức
- Trong trường hợp có tiếng ồn bất thường hoặc vận hành lỗi, bạn phải dừng nâng và kiểm tra nguyên nhân gây bất thường. Trong trường hợp nghi ngờ, liên hệ với bộ phận dịch vụ của nhà sản xuất
- Nguồn điện phải ngắt khi điều chỉnh, sửa chữa, hoặc bảo dưỡng thiết bị
- Cầu nâng 4 trụ Corghi phải được làm sạch và tất cả dầu bám trên mặt cầu phải được loại bỏ, chúng sẽ rất nguy hiểm
- Tất cả hoạt động bảo dưỡng thông thường hoặc bất thường là bắt buộc và phải thực hiện triệt để, như hiển thị trong sách hướng dẫn, ta phải ghi vào “báo cáo kiểm tra”
- Sử dụng phụ tùng chính hãng
Nghiêm cấm:
- Không được lạm dụng cầu nâng 4 trụ Corghi cũng như sử dụng dưới bất kì hình thức nào khác với mục “Mục đích sử dụng” của sách
- Không nâng tải trọng với 1 phần của cầu nâng (1 dầm dọc, hoặc hai thanh ngang)
- Không lắp cầu nâng 4 trụ Corghi ở khu vực dễ cháy nổ
- Không lắp cầu nâng 4 trụ Corghi ở ngoài trời
- Không lắp cầu nâng 4 trụ Corghi ở khu vực cọ rửa, phun cát hoặc khu vực bụi bặm
- Không sử dụng cầu nâng ở nơi có từ trường
- Không sử dụng cầu nâng để nâng vật thể khác với quy định hoặc sử dụng như 1 tời
- Không sử dụng cầu để nâng người hay động vật
- Không nâng xe với người hay đông vật trong đó
- Không sử dụng cầu nâng 4 trụ Corghi ở nhiệt độ dưới 5 độ và trên 40 độ C
- Không tự ý gây ra sự dao động tải trọng khi nâng hoặc hạ, hoặc dỡ tải
- Không vào khu vực làm việc bên dưới cầu nâng mà không kích hoạt thiết bị an toàn, và xoay công tắc về 0
- Không được đi khỏi cầu nâng mà không định vị nó ở vị trí thấp nhất hoặc ở vị trí ngồi khóa. Sau đó xoay công tắc về vị trí khóa
- Không được tháo hay thay đổi thiết bị bảo vệ hoặc an toàn cho cầu
- Không được thay đổi bộ phận của cầu nâng, bất cứ việc xáo trộn hay thay đổi sẽ ngay lập tức làm mất hiệu lực bảo hành, và sẽ làm giảm trách nhiệm trực tiếp hoặc gián tiếp của nhà sản xuất cho việc hư hỏng do sự giả mạo hay thay đổi đó
- Không sử dụng bộ phận hay phụ kiện của cầu nâng 4 trụ Corghi không được cung cấp bởi nhà sản xuất
Hướng dẫn lắp đặt cầu nâng 4 trụ Corghi
Cầu nâng 4 trụ Corghi phải được lắp đặt trên nền nhà xưởng có độ dày bê tông móng tối thiểu 15 mm, 1 lớp, mác bê tông không thấp hơn C10, C15 và chịu được lực 15 N/mm2. Nếu nền không đáp ứng được yêu cầu trên thì mỗi cột phải đặt lên nền bằng bê tông kích thước 600x 600mm, chiều dày tối thiểu 15 mm, chịu được lực 15 N/mm2
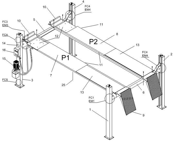
Bề mặt bê tông phải phẳng và cân bằng theo mọi hướng, kích thước tổng thể của cả hệ thống ở hình 2
Định vị chuẩn bị tiến hành lắp đặt
Cảnh báo : ở bước lắp đặt này, không thực hiện đấu điện
1) Khi chuẩn bị lắp đặt, để 1 khoảng không gian an toàn tối thiểu là 600 mm giữa cầu nâng với thiết bị khác
2) Trong khu vực đặt cầu nâng, đặt cột điều khiển ở bên trái và đối diện phía xe vào
3) Tháo thùng bảo vệ cầu nâng và cho các bộ phận cần lắp lên sàn nhà
Lắp đặt cầu nâng 4 trụ Corghi
1) Lắp tủ điều khiển (19, hình 10) lên cột 3 bằng vít
2) Lắp công tắc giới hạn FCS và FCA và kết nối chúng vào chân trong tủ, đảm bảo đúng thứ tự
3) Lắp bộ điều khiển thủy lực với mô tơ lên cột (hình 10)

Hình 10
1) Đặt 4 giá đỡ (1, hình 10) có cùng chiều cao và có thể chịu được 200 kg trên đó (hình 10)
2) Đặt dầm dọc cố định P1 (2, hình 10) trên 2 giá đỡ bên, nơi ống và dây cáp đi ra đối diện cột điều khiển (3, hình 10)
3) Đặt dầm dọc di động P2 (4, hình 10) lên 2 giá đỡ còn lại với mép trong đối mặt với P1
4) Kéo 4 dây cáp (6, hình 10) ra ngoài dầm P1
5) Đặt 2 dầm ngang ở đáy của đầu dầm dọc theo cách kéo dây cáp về bên trong cầu nâng phía bên dầm P1 (hình 10)
CHÚ Ý: trong những bước sau, điều cần thiết là dây cáp (6, hình 10) không bị nghiến hoặc cong quá mức vì nó làm hư hại dây cáp. Điều quan trọng nữa là dây phải được dẫn hướng chính xác vào trong puli tương ứng. Tuân thủ nghiêm ngặt theo hướng dẫn lắp đặt của nhà sản xuất.
6) Nâng 1 dầm ngang, trượt dây cáp đã đánh số (6, hình 10) theo sơ đồ hình 9, trượt cáp dầm ngang vào dầm dọc P1 và cố định nó với dầm dọc, sau khi định vị dầm di động P2 ở vị trí mong muốn với vít cung cấp (8, hình 10) mà không vặn chặt hoàn toàn. Lặp lại thao tác với dầm ngang còn lại
7) Kiểm tra dầm ngang- dầm dọc tạo thành 1 hình vuông và dầm di động P2 (4, hình 6) có thể trượt tự do trên dầm ngang, sau đó vặn chặt vít (8, hình 10)
8) Kéo cáp được đánh số ra khỏi dầm ngang sao cho chúng vượt quá pully tương ứng (hình 13 và 14). Lắp vít vào, cái mà tháo ra trước đó, vào lỗ dầm ngang đặt bên dưới từng pully (3, hình 13) và vặn chặt nó bằng đai ốc (23, hình 10) để tránh cho cáp ra ngoài

9) Chèn thanh khóa vào phía cuối của dầm ngang (9, hình 10), nó có sẵn 2 loại (RH và LH) để lỗ của thanh (10, hình 10) ở vị trí tương ứng với khóa an toàn và cố định ren đặt ở trên đỉnh của thanh, hướng ra phía ngoài của cầu. Thanh nên đi qua phần dẫn hướng nylon
10) Lắp mô tơ với bộ điều khiển thủy lực(24, hình 10) lên cột điều khiển (3, hình 10) bằng vít được cung cấp (24, hình 10)
11) Đặt cột điều khiển (3, hình 10) thẳng đứng ở bên mà ống và dây cáp P1 của dầm dọc P1 đi ra, gần cuối dầm ngang. Đặt cột khác (15, hình 10) thẳng đứng gần cuối dầm ngang
12) Đặt từng cột để phần cuối dầm ngang vượt qua cột và miếng trượt nylon (16, hình 10) ở cuối dầm ngang đối diện mặt bên trong của cột. Kiểm tra xem cột đã vuông góc hoàn toàn với sàn nhà chưa
13) Sau đó lắp thanh khóa (9, hình 10) vào phía trên của cột sử dụng vít cung cấp và đệm (17, hình 10) để 1 khoảng hở như hình 18
14) Cố định 4 dây cáp (6, hình 10) vào phía trên của cột tương ứng với vít và đệm được cung cấp (18, hình 10)
15) Lắp 2 tấm chặn bánh xe vào phía cuối dầm dọc bên phía cột điều khiển, dùng vít và đai ốc được cung cấp
16) Lắp tấm dẫn lên cầu vào phía còn lại của dầm dọc, đặt các chốt vào lỗ trên dầm dọc
17) Chú ý: lắp vít và đai ốc được cung cấp bên dưới tấm dẫn lên cầu và sau đó điều chỉnh sau khi lắp chúng, trước khi nâng cầu thì tấm phải chạm mặt sàn
Kết nối điện và thủy lực cho cầu nâng 4 trụ Corghi
CHÚ Ý: Điều quan trọng là hệ thống thủy lực và kết nối điện phải phù hợp thì cầu nâng 4 trụ Corghi mới hoạt động ổn định được.

Lắp đầu kết nối trên bộ điều khiển thủy lực (1, hình 11) như sau:
- Tháo đầu kim loại (2, hình 11) từ bộ điểu khiển và cố định nó bằng vòng đệm (3, hình 11) vào đầu chữ T (4, hình 11)
- Tháo nút bằng nhựa từ bộ điều khiển và lắp đầu chữ T (4, hình 11) với đầu côn và vòng đệm khác (5, hình 11)
- Cuối cùng lắp đầu co (6, hình 11) vào bộ điều khiển, sử dụng băng dính Teflon
Kết nối ống thủy lực cấp (6, hình 11) của dầm dọc P1 vào cút chữ T (4, hình 11) của bộ điều khiển
Kết nối ống xả (8, hình 11) của dầm cố định P1 vào đầu co của bộ điều khiển (6, hình 11)
Kết nối dây điện đi qua dầm cố định P1 vào chân trên bảng mạch . Đóng nắp lại
Kết nối dây điện của dầm ngang vào chân trên bảng mạch bên trong nắp đặt bên phải của dầm dọc P1
Kết nối giắc điện(15, hình 11) vào van điện từ của bộ thủy lực
Mở hộp công tắc của mô tơ bộ thủy lực và thực hiện kết nối điện với dây đi ra bảng mạch (16, hình 11) theo điện áp cấp được yêu cầu, như hình 12
Kết nối cầu nâng 4 trụ Corghi với lưới điện trong nhà xưởng
CHÚ Ý:
- Tủ điện sẽ kết nối với công tắc chính của nhà sản xuất và lắp đặt phù hợp với quy định của quốc gia hiện hành.
- Hệ thống cấp nguồn đến đến tủ điện cầu nâng 4 trụ Corghi phải phù hợp với tiêu chuẩn của quốc gia hiện hành
- Nguồn tối thiểu là 5 kW
- Tiết diện dây nguồn tối thiểu là 4 mm2
- Trong giai đoạn này, mô tơ điện chỉ có thể vận hành trong vài giây, để tránh hư hỏng bơm thủy lực

1) Kết nối dây nguồn (23, hình 11) đi ra từ tủ điện đến công tắc chính phù hợp với quy định của quốc gia
2) Bật nguồn và kiểm tra công tắc khẩn cấp (17, hình 1) đặt ở vị trí 1 (ON) (xoay nó nếu cần thiết), đèn cảnh báo điện áp (18, hình 1) sẽ sáng
3) Ấn và nhả nút UP (20, hình 1) và kiểm tra mô tơ quay theo hướng mũi tên. Nếu nó không quay theo chiều đó, ngắt điện và đảo 2 pha cho nhau (trong trường hợp này, mô tơ điện chỉ có thể vận hành trong vài giây để tránh hư hỏng bơm thủy lực)
- Sau khi hoàn tất cài đặt, kết nối dây mát nhà xưởng với cầu nâng 4 trụ Corghi để tránh rò điện
Điền đầy đủ hệ thống thủy lực và gióng thẳng dầm dọc
CẢNH BÁO: luôn kiểm tra rò dầu. Nếu có, cắt điện và vặn chặt chỗ rò rỉ
Để nâng dầm dọc cầu nâng 4 trụ Corghi ta làm như sau:
1) Tháo nút xả dầu (21, hình 11) và đổ 10l dầu vào bình (22, hình 11), loại ESSO NUTO H32 hoặc tương đương (độ nhớt ISO VG 32)
2) Ân nút UP (20, hình 1) và nâng dầm dọc 10 cm
4) Tháo 4 giá đỡ (1, hình 10) khỏi dầm dọc
5) Kiểm tra xem dầm dọc móc vào dây cáp ở cùng độ cao tính từ sàn đến gần cột. Nếu cần thiết, điều chỉnh cáp (6, hình 10) sử dụng đai ốc (18, hình 10) ở phía trên của cột đến khi dầm dọc thẳng song song với sàn nhà. Cuối cùng vặn chặt phía cuối cáp với đai ốc
6) Nhấn nút DOWN trên cầu nâng 4 trụ Corghi dầm dọc sẽ hạ rất chậm đến khi cơ cấu khóa an toàn được ăn khớp
7) Kiểm tra dầm dọc bị khóa bởi khóa an toàn ở cùng độ cao tính từ sàn nhà đến từng cột
Nếu cần thiết, điều chỉnh vị trí thẳng đứng của thanh khóa (9, hình 10) sử dụng vít vặn chặt (17, hình 10) đến khi dầm dọc song song với sàn. Cuối cùng vặn chặt bu long bằng đai ốc
8) Nhấn nút DOWN (21, hình 1) và giữ nút nhả khóa an toàn (22, hình 1) liên tục. Giữ đến khi dầm dọc dừng ở chiều cao an toàn được xác định bởi hoạt động của công tắc giới hạn FCE
9) Nhấn nút LOWERING COMPLETION đến khi dầm dọc cách sàn 1-2 cm
Cố định cột cầu nâng 4 trụ Corghi với sàn nhà
1) Đặt cột tựa vào phần dẫn hướng nylon phía sau (16, hình 10) của dầm ngang và kiểm tra tâm của chúng
2) Khoan lỗ 16 chiều sâu 110 mm xuống nền nhà bằng mũi khoan 16 mm. Sau đó làm sạch cẩn thận lỗ và nền nhà
3) Lắp bu lông nở 16 (loại HILTI HAS-A M16x140/25) xuống lỗ bằng búa
4) Vặn chặt bu lông nở bằng lực 100 Nm. Nếu chốt quay tự do, thay bằng chốt rộng hơn
5) Đặt cột vào vị trí thẳng đứng theo cả 2 hướng bằng nivo, nếu cần thiết nới lỏng đai ốc và đặt căn đệm bên dưới đế cột. Sau đó vặn chặt
Hướng dẫn sử dụng cầu nâng 4 trụ Corghi
Cài đặt cầu nâng 4 trụ Corghi
Thiết lập 1 mặt bằng phù hợp cho cầu nâng 4 trụ Corghi, và môi trường làm việc, bằng cách đánh giá cẩn thận các khía cạnh sau:
- Vị trí phải an toàn, không có bất kì sự cản trở, và được bảo vệ khỏi các tác nhân mội trường. Từ vị trí điều khiển người vận hành có thể nhìn thấy toàn bộ hệ thống và khu vực làm việc của cầu nâng 4 trụ Corghi để phát hiện ngay lập tức sự hiện diện của người không được phép và vật thể có thể gây ra nguy hiểm trong quá trình làm việc.
- Khoảng cách tính từ cầu đến thiết bị tối thiểu là 70 cm.Ánh sáng phải tốt, không có điểm mù hoặc quá chói, không gần nơi phát sinh khí hoặc chất dễ cháy
- Tránh mặc quần áo không phù hợp. Chúng có thể vướng vào bộ phận chuyển động của cầu. Khi xử lý theo quy định hiện hành của quốc gia, ngoài việc mặc quần áo phù hợp với khu vực làm việc, người vận hành phải đeo các phụ kiện bảo vệ để tránh thương tích như mũ bảo hộ, kính mặt, găng tay, giày…
Chú ý:
- Cầu nâng không dùng để xịt rửa, tẩy dầu mỡ, bắn cát và mài
- Tuân thủ các tiêu chuẩn hiện hành của quốc gia liên quan đến sử dụng và tiêu hủy sản phẩm sử dụng để làm sạch và bảo dưỡng cầu nâng, theo khuyến cáo của nhà sản xuất
- Trước khi sử dụng bất kì thao tác nào với tủ điều khiển, đảm bảo không có người đứng cạnh cầu nâng
Tiến hành nâng cầu nâng 4 trụ
- Đặt công tắc khẩn cấp (17, hình 1) đặt ở vị trí 1 (ON), xoay nó nếu cần thiết. Đèn cảnh báo điện áp (18, hình 1) sẽ sáng
- Nhấn nút UP (20, hình 1) đến khi đạt được chiều cao mong muốn
- Nhấn nút DOWN (21, hình 1) đến khi khóa an toàn cơ khí được gắn hoàn toàn
Tiến hành hạ cầu nâng 4 trụ
- Nhấn nút UP (20, hình 1) và nút nhả khóa an toàn (22, hình 1) liên tục để nâng cầu lên khoảng 20- 25 mm trước khi bắt đầu hạ cũng như nhả khóa an toàn
- Nhấn nút DOWN (21, hình 1) trong khi giữ nút nhả khóa liên tục đến khi đạt được chiều cao mong muốn hoặc đến khi dầm dọc (bàn nâng) dừng lại (khoảng 15 cm tính từ nền nhà do vận hành công tắc giới hạn FCE)
Chú ý: Trước khi sử dụng cầu nâng 4 trụ Corghi, đảm bảo người không được ủy quyền và động vật không ở trong khu vực nguy hiểm (1, hình 2)
Việc kiểm tra này luôn được thực hiện trước khi hạ hoàn toàn bàn nâng, giai đoạn cuối cùng này giai đoạn này được xem là bước nguy hiểm đặc biệt với bất kì người nào đứng gần khu vực nguy hiểm được kẻ vạch màu vàng (hình 2)
Nhấn nút DOWN (22, hình 1) đến khi cầu hạ xuống mức thấp nhất
Vị trí phanh của cầu nâng 4 trụ Corghi
Nhấn nút UP (20, hình 1) đến khi đạt được chiều cao mong muốn
Nhấn nút DOWN (21, hình 1) bàn nâng sẽ hạ chậm đến khi khóa an toàn móc vào hoàn toàn
CẢNH BÁO: công việc này luôn được tiến hành trước khi vào khu vực làm việc
Công tắc khẩn cấp của cầu nâng 4 trụ Corghi
- Trước khi làm việc ở bên dưới cầu nâng, công tắc khẩn cấp (17, hình 1) bắt buộc phải ở vị trí 0 (OFF)
- Không được lại gần bàn nâng khi đèn báo điện áp (18, hình 1) sáng
- Trước khi rời khỏi cầu nâng 4 trụ, bên cạnh việc xoay công tắc khẩn cấp về vị trí 0 (OFF), người vận hành phải khóa cơ khí chuyển động quay bằng cách chèn khóa móc (không cấp cùng cầu nâng) vào lỗ đặc biệt
Quy trình nâng bàn nâng cần tuân thủ theo các bước
- Kiểm tra xem công tắc khẩn cấp về vị trí 0, xoay nó nếu cần thiết
- Đặt xe trên bàn nâng
- Đặt công tắc khẩn cấp về vị trí 1 (ON)
- Nâng xe khoảng 10 cm
- Kiểm tra độ thăng bằng xe
- Tiếp tục nâng xe
- Nhấn nút DOWN (21, hình 1) đến khi bàn nâng dừng xuống vị trí khóa an toàn
CẢNH BÁO:
Định vị xe: sau khi định vị xe trên bàn nâng, đảm bảo bánh xe gần đường tâm của bàn nâng, sau đó khóa phanh kẹp để ngăn chặn chuyển động nguy hiểm
Quy trình hạ bàn nâng và đỡ tải
Xoay công tắc khẩn cấp về 1 (ON)
Thực hiện hạ thấp để bàn nâng di chuyển xuống đến khi cách mặt đất 15 cm
Chú ý:
Trước khi sử dụng cầu nâng, đảm bảo người không được ủy quyền và động vật không ở trong khu vực nguy hiểm (1, hình 2)
Việc kiểm tra này luôn được thực hiện trước khi hạ hoàn toàn bàn nâng, giai đoạn cuối cùng này giai đoạn này được xem là bước nguy hiểm đặc biệt với bất kì người nào đứng gần khu vực nguy hiểm (1, hình 2)
Nhấn nút hoàn tất hạ cầu (22, hình 1) đến khi bàn nâng hạ xuống hoàn toàn. Ở bước hạ thấp cuối cùng, âm thanh cảnh báo được phát ra
Xoay công tắc khẩn cấp về 0
Cho xe khỏi cầu
Thiết bị an toàn của cầu nâng 4 trụ Corghi
CẢNH BÁO:
- Thiết bị an toàn không được làm xáo trộn hay vô hiệu hóa, chúng phải luôn luôn trong tình trạng tốt
- Khóa an toàn phanh chúng ngăn chặn bàn nâng hạ xuống do mạch thủy lực bị lọt khí
- Khóa an toàn cơ khí chống rơi chúng ngăn bàn nâng hạ xuống do lỏng hay đứt dây cáp
Chú ý:
Trong trường hợp lỏng hay đứt dây cáp, công tắc giới hạn có liên quan sẽ ngăn chặn bất kì chuyển động của cầu nâng 4 trụ Corghi.
Trong trường hợp này, kiểm tra vị trí và trạng thái của dây cáp cẩn thận và sau đó, sau khi đảm bảo không có nguy hiểm, sử dụng công tắc chìa (24, hình 1) để vận hành lại cầu. Một khóa ngẫu nhiên (1 chướng ngại vật bên dưới bàn nâng hoặc chỉ gài 1 khóa an toàn) sẽ không ngăn được cầu nâng vận hành bình thường. Tháo chìa khỏi công tắc chọn, bảo quản nó ở nơi an toàn và tiếp tục sự dụng cầu nâng.
Nếu không phải trường hợp này, khóa cầu nâng và liên hệ bộ phận kĩ thuật
Cần chú ý đến các nút điều khiển của cầu nâng 4 trụ Corghi:
- CHẶN BÁNH XE (10 và 9, hình 1) khi xe nâng lên, chúng sẽ ngăn chặn xe di chuyển trên bàn nâng bằng cách chặn bánh xe của nó. Chúng được tích hợp đường dẫn dao động ở hướng xe vào và cố định ở hướng đối diện
- VAN GIẢM ÁP SUẤT trong mạch thủy lực: nó sẽ ngăn nâng xe có tổng trọng lượng lớn hơn tải trọng tối đa của cầu
- Van dù an toàn trên xylanh thủy lực: nó ngăn chặn việc hạ thấp bàn nâng trong trường hợp áp suất hệ thống thủy lực đột nhiên tụt xuống
- Công tắc khẩn cấp (17, hình 1) khi ở vị trí 0, nó sẽ dừng vận hành cầu
- Nút hạ thấp hoàn toàn (22, hình 1): nhấn nút DOWN (21, hình 1): cầu nâng sẽ dừng ở vị trí cách sàn 15 cm và nhắc người vận hành rằng, trước khi hạ thấp hoàn toàn bằng nút (22, hình 1) ta cần phải đảm bảo khu vực nguy hiểm (1, hình 5) sạch sẽ, khi bước cuối cùng của chuyển động hạ là đặc biệt nguy hiểm cho bất kì người nào ở khu vực xung quanh cầu nâng (1, hình 5)
- ĐÈN BÁO ĐIỆN ÁP (18, hình 1) nó có nghĩa là việc vào trong bàn nâng không được phép
- Mạch điện bổ sung điện áp thấp: không gây ra điện giật
Trường hợp cần hạ khẩn cấp cầu nâng 4 trụ Corghi
Chú ý: Khi tiến hành “hạ khẩn cấp”, khóa an toàn cơ khí sẽ bị vô hiệu hóa
Các thao tác sau sẽ được thực hiện:
- Khi cầu nâng không thể đi xuống do lỗi nguồn hay trong trường hợp tắt nguồn
- Trong trường hợp cần thiết tuyệt đối
- Bởi người vận hành có năng lực duy nhất
- Nếu khu vực cầu nâng được giới hạn và được truy cập bởi 1 người vận hành duy nhất
Quy trình hạ khẩn cấp
- Xoay công tắc khẩn cấp sang vị trí 0 (OFF)
- Nếu cầu nâng ở vị trí phanh, khóa an toàn sẽ không mở. Các bước vận hành sau chỉ có thể nếu cầu nâng trang bị bơm tay khẩn cấp được sử dụng để nâng bàn nâng để nhả khóa an toàn cơ khí
- Nếu cầu nâng không hạ xuống do lỗi điện hoặc mất điện, khóa an toàn ở trong dầm ngang sẽ bị ngắt bằng tay bởi mở 4 nam châm điện (1, hình 28) với 1 chêm (3, hình 28) có chiều cao thích hợp để móc khóa an toàn (2, hình 28) không thể vào lỗ của thanh khóa (9, hình 10)
- Tiếp tục hạ thấp bằng tay như sau:
- Tháo hoàn toàn nắp van điện từ EV1 (1, hình 29) và sau đó nhấn ti (2, hình 30) thật chậm để bàn nâng di chuyển xuống
- Khi thao tác hoàn tất, vặn hoàn toàn nắp van điện từ (1, hình 30)
- Cuối cùng tháo căn đệm ngắt khóa an toàn để làm việc an toàn với cầu nâng
Quy trình bảo dưỡng cầu nâng 4 trụ Corghi
Công việc bảo dưỡng đối với bất kỳ thiết bị cơ khí nào đề là rất cần thiết nó mang lại nhiều lợi ích cho người sử dụng như: Chi phí vận hành thấp và tuổi thọ Cầu nâng 4 trụ được kéo dài, tránh được những nguy hiểm cho người thợ và phương tiện trên cầu....
Lưu ý:
Lịch trình thời gian đưa ra kế hoạch bảo dưỡng cụ thể liên quan đến tình trạng vận hành tiêu chuẩn của từng xưởng sửa chữa ô tô. Nó dễ bị thay đổi dựa trên loại sửa chữa, mức bụi bẩn của môi trường, tần suất sử dụng…
Nếu tình trạng nặng hơn, việc bảo dưỡng phải tiến hành thường xuyên
Khi bổ sung hay thay dầu, luôn sử dụng cùng loại dầu đáp ứng theo tiêu chuẩn của nhà sản xuất khuyến cáo.
Kiểm tra thường xuyên các thiết bị an toàn của cầu nâng bốn trụ Corghi
Chú ý: các công việc phải được thực hiện khi cầu nâng không tải
Trước tiên là khóa an toàn cơ khí của cầu nâng bốn trụ
- Bật công tắc khẩn cấp sang vị trí 1 (ON)
- Nhấn nút UP (20, hình 1) và nâng bàn nâng lên khoảng 1m
- Nhấn nút DOWN (21, hình 1) và nút nhả khóa an toàn liên tục (23, hình 1) đến khi bàn nâng dừng lại trước vật cản
- Chắc chắn rằng cầu nâng dừng trong khoảng 150 mm do công tắc giới hạn được kích hoạt bằng cách nới lỏng dây cáp
- Lặp lại thao tác với 3 cột còn lại. Điều chỉnh công tắc giới hạn nếu cần thiết
- Nhấn nút UP và tháo vật cản
- Lặp lại thao tác DOWN
- Kiểm tra móc khóa của khóa an toàn cơ khí của từng cột móc vào rãnh
- Kiểm tra móc khóa của khóa an toàn cơ khí chống trượt của từng cột, khi dây cáp bị lỏng, có thể vào trong rãnh và công tắc của chúng (FCx hình 19 và 20) được kích hoạt
Lên lịch bảo dưỡng định kỳ cầu nâng 4 trụ Corghi
Hàng tuần:
- Kiểm tra thiết bị an toàn hàng tuần như mô tả trong sách này
- Kiểm tra trạng thái của dây cáp và thay chúng bằng phụ tùng chính hãng nếu cần thiết
- Kiểm tra mức dầu thủy lực như sau:
- Hạ hoàn toàn bàn nâng và kiểm tra mức tương ứng với dấu trong bình chứa. Nếu cần thiết, bổ sung dầu “ESSO NUT H32” hoặc tương đương
Hàng tháng:
- Kiểm tra độ chặt của ốc cầu nâng
- Kiểm tra độ kín của hệ thống thủy lực, vặn chặt nếu lỏng
- Kiểm tra tình trạng của ống thủy lực, nếu bị hỏng thay thế bằng phụ tùng tương đương
- Kiểm tra tình trạng của chốt, con lăn, ổ bi, tay đòn với bộ mở rộng của chúng, bao gồm lượng và tình trạng của mỡ bôi trơn, thay thế bộ phận bị hỏng bằng phụ tùng chính hãng
Sau 200 giờ làm việc hoặc 5 năm:
- Kiểm tra dầu hệ thống thủy lực, xả dầu bẩn khỏi thùng. Làm sạch lọc dầu. Với thao tác, vui lòng tham khảo bảng tương ứng cho biết phụ tùng được cung cấp
- Nếu các công việc này được thực hiện với sự cẩn thận tối đa, thiết bị sẽ luôn trong tình trạng tốt mỗi khi nó khởi động lại
Một bơm thủy lực khẩn cấp được cung cấp khi có yêu cầu. Bơm này được sử dụng trong trường hợp mất điện, như mô tả ở mục 5.5 “hạ thấp khẩn cấp”
Luôn nhớ rằng nhà sản xuất và đơn vị phân phối luôn đáp ứng nhu cầu sửa chữa và phụ tùng của bạn một cách tốt nhất.
Xử lý khi cầu nâng 4 trụ Corghi gặp sự cố
|
VẤN ĐỀ |
NGUYÊN NHÂN |
KHẮC PHỤC |
|
Cầu nâng không làm việc. Không có phản ứng |
- Không có nguồn cấp - Kết nối dây - Cầu chì bị cháy |
- Kiểm tra nguyên nhân - Kiểm tra kết nối - Thay |
|
Khi ấn nút UP (20, hình 3), mô tơ quay nhưng cầu không dịch chuyển |
- Chiều quay của mô tơ - Không đủ dầu trong thùng - Van solenoid xả (EV1) mở hoặc bị hỏng |
- Đảo lại dây kết nối - Bổ sung dầu - Kiểm tra hoặc thay van điện từ |
|
Khi nhấn nút DOWN (21, hình 1), bàn nâng không đi xuống |
- Kết nối dây - Công tắc micro (FCx hình 19- 20) vận hành hoặc hỏng
- Cơ cấu khóa an toàn cơ khí chưa được nhả - Nam châm điện bị hỏng - Van an toàn vận hành - Bàn nâng bị khóa cơ khí |
- Kiểm tra kết nối - Kiểm tra công tắc micro FC1, FC2, FC3, FC4, FCS và tình trạng của dây cáp - Kiểm tra nam châm điện EM1, EM2, EM3, EM4 - Nt - Kiểm tra hệ thống thủy lực - Nâng và nhả bàn nâng |
Trên đây là những chia sẻ khá đầy đủ của chúng tôi về cầu nâng 4 trụ của hãng Corghi tài liệu này thích hợp với nhiều đối tượng như:
Thợ sửa chữa ô tô
Các kỹ thuật viên lắp đặt cầu nâng
Các giám đốc dịch vụ tại các hãng sửa chữa
Giáo viên giảng dạy về thiết bị cơ khí
Sinh viên các trường kỹ thuật
Hi vọng sẽ mang đến cho các bạn những kiến thức bổ ích nhất về cầu nâng 4 trụ chất lượng cao này, mọi đóng góp của các bạn có thể gửi trực tiếp cho chúng tôi để ngày càng hoàn thiện hơn về sản phẩm này.
Ngoài sản phẩm cầu nâng 4 trụ Corghi các bạn còn có thể tham khảo thêm nhiều loại cầu nâng khác như:
>>> Các chủng loại cầu nâng ô tô cho các trung tâm sửa chữa
>>> Cầu nâng ô tô 2 trụ được nhiều thợ sửa chữa tin dùng
>>> Cầu nâng cắt kéo nào tốt nhất hiện nay
>>> Cầu nâng 1 trụ rửa xe nào có chất lượng tốt
Ghi rõ nguồn gốc khi sao chép lại bài viết
"Công ty cổ phần thiết bị Tân Phát "

Hỗ trợ
Hướng dẫn








Almorgo
Nguyễn Gia Bảo