Cầu nâng 1 trụ Ấn Độ là một thương hiệu cầu nâng rửa xe ô tô có độ tin tưởng cao tại Việt Nam trong những năm qua, được công ty cổ phần thiết bị Tân Phát đưa về thì trường Việt Nam từ rất sớm, khi đó các xưởng dịch vụ rửa xe chủ yếu là cầu xây hoặc được chế tạo bằng sắt, ban đầu người tiêu dùng hầu như ít quan tâm đến sản phẩm này vì giá thành khá cao, lượng xe ô tô cũng chưa phải là quá lớn, nhu cầu chăm sóc xe của người dân cũng chưa đòi hỏi quá cầu kỳ.
Đến khi nền kinh tế phát triển, lượng ô tô mới cũng tăng nhanh nhu cầu dịch vụ đi kèm cũng phát triển theo, trong đó có nghề rửa xe dọn nội thất, các xưởng rửa xe đua nhau mọc lên do chi phí đầu tư ban đầu không quá lớn, chủ yếu là mặt bằng rộng tiện đường đi lại.
>>> Giá cầu nâng 1 trụ Ấn Độ tốt nhất thị trường

Cầu nâng 1 trụ ấn độ
Để cạnh tranh và tạo sự khác biệt ngoài khâu phục vụ chu đáo thì đó là những thiết bị mới, nhiều tính năng hữu ích lúc đó người ta nghĩ ngay đến cầu nâng 1 trụ rửa xe ô tô, một sản phẩm mang đến cho người sở hữu ô tô sự tự tưởng vì xe của mình được làm sạch đến từng chi tiết, kể cả những ngóc ngách trong gầm xe.
Đến nay công ty cổ phẩn thiết bị tân phát đã xuất ra thị trường hàng nghìn bộ cầu nâng 1 trụ Ấn độ trên toàn quốc, sản phẩm cầu nâng rửa xe ô tô ấn độ này đã ăn vào tiềm thức của những chủ xưởng đã và đang có ý định mở, bởi độ bền và sự ổn định của thiết bị, nhà sản xuất cam kết bảo hành xylanh cầu lên đến 5 năm chưa có hãng nào cam kết thời gian bảo hành lâu đến vậy
Chính vì những ưu điểm đó mà những sản phẩm cầu nâng 1 trụ Việt Nam hay cầu nâng 1 trụ Trung Quốc khó có thể cạnh tranh được tại thị trường Việt Nam trong suốt những năm qua.
Sau đây chúng tôi xin đưa ra một vài thông tin về thiết bị này để các bạn tham khảo
Nguyên lí hoạt động của cầu nâng 1 trụ Ấn Độ
Cầu nâng một trụ Ấn Độ - ELGI được thiết kế hoạt động dựa trên nguyên tắc khí nén- thuỷ lực. Một piston được đặt trong ống xylanh. Dầu trong xylanh được tạo ra áp suất bởi khí nén và đẩy piston đi lên. Trên đỉnh piston được lắp một dầm đỡ chữ H, chữ X. Xe sẽ được nâng đỡ bởi dầm đỡ chữ H, chữ X này trong quá trình rửa.
Ứng dụng của cầu nâng 1 Ấn Độ trụ trong thực tế
Cầu nâng 1 trụ Ấn Độ được thiết kế chuyên cho việc nâng xe để phục vụ công việc rửa xe ô tô, đôi khi có thể thay dầu kiểm tra gầm hoặc làm lốp.
Cầu nâng 1 trụ Ấn Độ có thể nâng được hầu hết các loại xe nằm trong dải tải trọng làm việc của thiết bị. Tất cả các chi tiết đều được chống gỉ để kéo dài tuổi thọ và tăng sự an toàn cho thiết bị và con người. Đặc biệt Xylanh cầu nâng 1 trụ ấn độ còn được bọc composit chống ăn mòn.
Hoạt động của cầu nâng 1 trụ Ấn Độ
Cầu nâng rửa xe ấn độ gồm có 1 bộ xylanh (bao gồm cả piston, xylanh, vòng đệm và gioăng làm kín).
Trong xy lanh cầu rửa xe chứa dầu truyền lực trung gian được sinh áp bằng khí nén và có van điều khiển khí, tiết lưu dầu để đảm bảo an toàn. Một bộ dầm nâng với các đường ray bên để nâng xe.
Khi khí nén được cấp vào bình dầu, khí nén sẽ tạo áp suất tương đương lên dầu truyền lực. Dầu này sẽ bị đẩy qua van tiết lưu dầu và đi vào xylanh. áp suất dầu sẽ đẩy piston đi lên, và nhờ có hệ thống gioăng phớt mà áp suất dầu được duy trì và đảm bảo cho piston không bị tụt dưới trọng lượng của xe.
Khi muốn cho xe xuống, van khí được đóng lại, dưới tải trọng của xe, dầu sẽ được đẩy ra khỏi xylanh, piston sẽ bị ép xuống cho dầu hồi về bình qua các ống dẫn.
Piston thuỷ lực được thiết kế và chế tạo mạ crôm bóng để chống gỉ. Để tránh bụi và các mạt kim loại làm xước piston, cầu nâng rửa 1 trụ ấn độ được trang bị một vòng gạt bụi, một thiết kê rất thông minh của nhà sản xuất
Thông số cơ bản của cầu nâng 1 trụ Ấn Độ

Model: HS 00040
Kiểu: Thuỷ lực + khí nén
Tải trọng tối đa: 4 tấn
Hành trình nâng tối đa: 1.5 mét
Đường kính xylanh-piston: 270 mm
áp suất làm việc: 10 kg/cm2
Số piston: 1
Số dầm đỡ: 1
Chiều dài làm việc của dầm đỡ: 4500 ± 10 mm
Chiều rộng dầm đỡ: 700 ± 10mm
Thời gian nâng: 40 giây ± 10”
Thể tích bình dầu: 150 lít
Thể tích dầu trong xylanh lực: 50 lít
Khối lượng toàn bộ: 543 kg
Khí nén yêu cầu: > 10 kg/ cm2 và > 130 lít/ phút
Phụ kiện thiết bị nhà sản xuất cung cấp:
Bộ xylanh lực: 1 bộ
Dầm đỡ: 1 bộ
Ray trượt: 1 bộ (4 chiếc)
Bình chứa dầu truyền lực: 1 cái
Van điều chỉnh khí nén: 1 cái
Van điều khiển dầu: 1 cái
Chốt hãm: 1 bộ
Ray bên với tay đòn (đặt thêm): 1 bộ
Bộ giảm âm khí nén (đặt thêm): 1 bộ
Vật tư khách hàng phải cung cấp khi lắp đặt cầu nâng 1 trụ ấn độ
Dầu thuỷ lực: 210 lít.
Nguồn khí nén 9- 12 bar với lưu lượng khí 130 lít/phút.
ống dẫn khí từ máy nén đến bình chứa dầu.
Nền móng.
Nhân công lắp đặt cầu theo hướng dẫn của nhà cung cấp.
Chủng loại dầu dùng cho cầu nâng 1 trụ ấn độ:
|
Tiêu chuẩn |
Nhà sản xuất dầu |
|||
|
ISO V. G.No. |
Bharat Petroleum |
Hindustan Petroleum |
Indian Oil |
Castrol |
|
I.S.O. - 68 |
Bharat Petroleum |
Enklo - 68 |
Servo System 68 |
Perfecto 69 Perfecto T 68 |
Hướng dẫn lắp đặt cầu nâng 1 trụ rửa xe Ấn Độ
Chọn hướng lắp cầu nâng rửa xe
Để quá trình vận hành và khai thác thiết bị được hiệu quả, việc lắp đặt và vị trí lắp đặt, hướng vào xe phải được tính toán cẩn thận. Vì vậy, phải tuân theo các quy tắc sau:
- Đúng hướng vào của xe.
- Khu vực làm việc phải bằng phẳng và đủ rộng cho làm việc quanh xe.
- Trần nhà phải cao hơn tổng chiều cao của cầu cộng với chiều cao của xe cao nhất mà bạn sẽ nâng.
Nền móng để lắp cầu nâng 1 trụ ấn độ

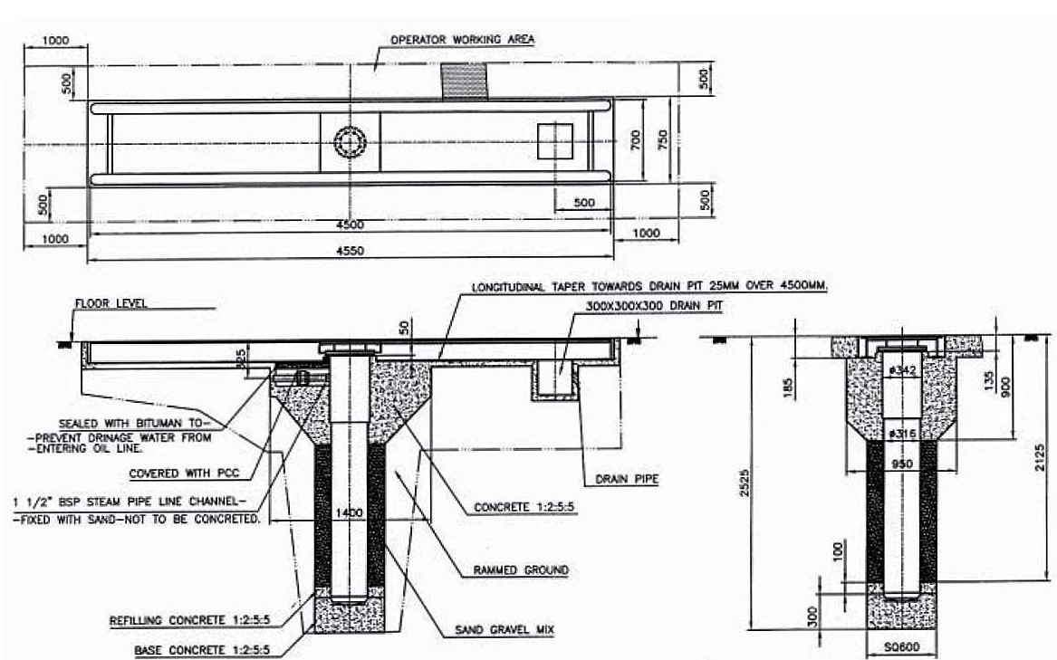
Bản vẽ móng cầu nâng 1 trụ ấn độ
Nền móng cho cầu nâng 1 trụ rửa xe phải được thực hiện đúng theo tiêu chuẩn của bản vẽ
Phần được biểu thị bằng dấu chấm và hình tam giác là bê tông và không gian giữa các khối bê tông phải được đổ bằng cát khô, sỏi hoặc đất sét.
Không được đổ chèn các khe hở này bằng rác, đá kém chất lượng, đá nhọn hoặc các vật liệu tương tự.
Làm hố móng cho cầu nâng 1 trụ ấn độ
- Sau khi đào hố, xoi đường dẫn cho ống dẫn dầu, đổ móng cho đế móng như hướng dẫn trên bản vẽ với diện tích đáy khoảng 600 mm.
- Trước khi đổ bê tông, phải đầm móng thật chặt để tránh lún.
- Móng đế đã được đầm chặt có thể đổ bê tông, và bê tông đổ xuống cho đến khi độ sâu cách mặt sàn 2525 mm.
- Trước khi bê tông khô, khoét một lòng chảo trên bê tông cho đế xylanh, có thể dùng khẩu cống thả xuống cũng được.
- Trước khi đặt xylanh cầu nâng 1 trụ lên móng đế, bạn phải tháo palét gỗ trên xylanh bằng cách gỡ 2 bulông cố định trên đó.
- Nắp bằng gỗ sẽ được tháo rời đồng thời với nắp tôn che đỉnh thiết bị.
- Trước khi bê tông đông cứng, hạ xylanh cầu xuống bằng xích và palăng ba chân. Chắc chắn khoảng cách trên đỉnh móng (185 mm) là chính xác.
- Không cho phép xylanh cầu nâng rửa xe trượt trên móng.
- Đổ bê tông tiếp tục xung quanh đáy cầu và mỗi lớp bêtông phải được đầm chặt một lần.
- Khoảng cách đáy bê tông móng đến mặt sàn là 2.125 mm
Lấy thăng bằng
- Đánh thăng bằng cho cầu nâng 1 trụ ấn độ được thực hiện trước khi bê tông đổ và đông cứng.
- Khi nâng cầu bằng palăng ba chân để hạ hố, bạn phải xiết chặt đai thép vào đỉnh piston để cho hai bulông được tháo ra khỏi đế palét gỗ.
- Nới lỏng hai bulông khoá trên tấm thép che đỉnh piston. Khi đó, bạn có thể kéo piston ra hết hành trình tự do.
- Việc đánh thăng bằng cho cầu nâng 1 trụ ấn độ được thực hiện bằng nivô nước và quả dọi.
- Nếu không có nivô, bạn có thể kéo dài piston cầu và dọi thẳng theo các hướng
- Nếu bạn có nivô, đặt nivô lên đỉnh cầu và điều chỉnh thân cầu đúng kích thước theo các hướng.
- Trên vị trí xylanh cầu đã được cố định, đổ bê tông và cố định vị trí thân cầu cho đến khi bê tông khô.
- Sau khi bê tông đế cầu đông cứng, hố móng phải được lấp bằng cát hoặc đất sét tốt và đầm chặt cho đến khi cách mặt sàn 900 mm.
- Khi piston cầu nâng 1 trụ ấn độ ( ty cầu nâng 1 trụ ) được kéo tự do, việc đổ dầu cho nó sẽ được thực hiện.
- Cẩn thận để tránh làm tổn thương cho piston cầu nâng 1 trụ ấn độ khi đổ bê tông cũng như cát, bụi, …
Tiến hành lắp đặt cầu nâng 1 trụ ấn độ
- Tất cả các đường dầu phải dùng ống thép 1- 1/2 inch và không cho phép có chỗ nối.
- Tất cả các ống khí dùng ống 1/ 2 inch liền mạch.
- Thông rửa thật sạch lòng ống
- Sơn phủ chống gỉ bên ngoài ống.
- Nối ống ở vị trí thích hợp và cho phép như trên bản vẽ.
- Vị trí lắp van khí và van dầu điều khiển phải phù hợp cho người vận hành khi vận hành cầu.
- Nối đầu vào của van điều khiển khí nén đến đầu ra của máy nén khí và đầu ra của van đến IOR
- Nối van điều khiển dầu đến IOR và đầu ra của xylanh.
- Hạn chế tối đa chỗ uốn tại ống dẫn dầu để tránh gây cản thuỷ lực.
- Kiểm tra sự rò rỉ bằng khí nén và nước xà phòng.
- Trong quá trình kiểm tra, các van điều khiển phải được đóng thật chặt.
Hoàn thiện bê tông hố cầu nâng 1 trụ ấn độ
- Sau khi gắn ống hơi và ống dầu xong, bạn có thể đổ bê tông cho phần đỉnh cầu và tạo hố cho dầm nâng.
- Nối ống xả bê tông đến đầu xả ngoài của máy bơm bê tông.
- Chắc chắn rằng piston cầu nâng 1 trụ phải ở vị trí thấp nhất trên xylanh. Vòi bơm bê tông phải được bơm vào vị trí tự do để tránh làm mất sự ngay ngắn của xylanh trên đế móng.
Đổ dầu cho cầu nâng 1 trụ ấn độ

Tính toán lượng dầu như sau:
- Dầu trong xylanh khi ở vị trí thấp nhất : 50 l= a
- Dầu để nâng piston lên đỉnh : 150 l = b
- Dầu trên ống : 1.25 L/ ft x 2 ft = c
- Tổng cộng : ể = a+b+c ~ 210 lít tuỳ theo chiều dài đường ống.
Quy trình đổ dầu cho cầu nâng rửa xe:
- Tháo bulông M12 trước khi đổ dầu.
- Mở hoàn toàn van dầu.
- Tháo nắp nhựa bảo vệ đỉnh xylanh, khí trong xylanh sẽ thoát ra thông qua lỗ đổ dầu.
- Đổ dầu cho đến khi không còn bọt khí nổi lên thông qua lỗ đổ dầu.
- Xiết ốc xả bọt khí lại và đậy nút nhựa bảo vệ lên.
- Sau khi việc đổ dầu hoàn tất, việc kiểm tra rò rỉ trên toàn hệ thống cần được thực hiện.
- Giữ van khí mở cho đến khi piston nâng lên độ cao khoảng 30 cm.
- Đóng van khí và kiểm tra rò rỉ trên đường dầu.
- Nếu phát hiện chỗ bị rò rỉ, phải làm kín bằng chất làm kín.
- Lấp kín đường ống dẫn dầu bằng cát sạch.
- Đổ mặt sàn làm việc cho cầu bằng các tấm bê tông và ximăng.
Lắp dầm cầu nâng 1 trụ ấn độ
- Nâng cầu lên khoảng 500 mm bằng cách mở van khí và van dầu.
- Đặt dầm đỡ lên trên đỉnh piston và cố định nó trên đỉnh piston bằng các bulông hãm.
- Chú ý lắp chính xác các chiều phù hợp với hướng xe và yêu cầu công việc.
- Dầm cầu và xylanh ở trạng thái cân bằng với độ nghiêng cho phép của trụ cầu (piston)< 1o. Các đệm gạt bụi không được bị tỳ hay chịu tải.
Kiểm tra toàn bộ cầu nâng 1 trụ ấn độ lại lần cuối trước khi thử tải
- Nâng cầu lên hai hoặc ba lần và chắc chắn rằng cầu hoạt động êm và trơn chu.
- Nếu quá trình vận hành mà cầu lên không đều tốc độ, bạn nới lỏng vít xả khí cho đến khi hết bọt khí thoát ra.
- Kiểm tra mức dầu trong hệ thống bằng cách hạ cầu hết cỡ, xả van khí rồi mở nắp que thăm dầu. Nếu thấy thiếu cần bổ xung phù hợp.
Vận hành cầu nâng 1 trụ rửa xe ấn độ
- Hạ cầu xuống vị trí thấp nhất.
- Lái xe vào dầm cầu.
- Chắc chắn rằng trọng lượng xe được chia đều trên dầm.
- Khởi động máy nén khí.
- Mở van khí nén.
- Mở van dầu, cầu sẽ được nâng lên.
- Khi xe được nâng đến chiều cao cần thiết, đóng van khí nén.
- Sau khi công việc trên xe thực hiện xong, đưa cần gạt van điều khiển khí về vị trí xả.
- Khí trong bình chứa dầu sẽ bị giảm áp suất và dầu được đưa hồi về bình.
- Xe được đưa xuống từ từ nhờ van tiết lưu.
- Khi cầu xuống cận mặt sàn, đóng kín van khí và lái xe ra khỏi cầu.
Chú ý an toàn khi vận hành cầu nâng 1 trụ ấn độ
- Không sử dụng cầu nâng rửa xe ấn độ ngoài mục đích thiết kế.
- Không sử dụng cầu nâng 1 trụ ấn độ khi không có dầu. Nếu không tuân thủ điều này chắc chắn sẽ gây tai nạn nghiêm trọng cho người, xe ô tô và thiết bị.
- Phải kiểm tra chắc chắn là van khí được đóng khi không vận hành thiết bị.
- ống dầu theo chiều dài của nó không cho phép bị đổ bê tông lên. Điều này có thể làm cho ống dầu bị vỡ do giãn nở nhiệt khi hoạt động.
- Trọng lượng xe trên cầu phải tuân theo tải trọng thiết kế.
- Không xoay dầm đỡ xe khi cầu đang lên.
- Không được di chuyển hay làm việc trên xe khi cầu đang nâng lên.
- Kiểm tra áp suất hệ thống thường xuyên theo định kỳ để tránh tai nạn.
Các lỗi thường gặp ở cầu nâng 1 trụ ấn độ và cách khắc phục
|
Lỗi |
Nguyên nhân |
Khắc phục |
|
Piston đi xuống từ từ khi ở vị trí cao nhất. |
Dầu rỉ qua giăng phớt làm kín của piston. Van khí bị hở. Dầu rỉ trên đường ống |
Thay vòng gioăng phớt làm kín. Thay van khí. Khắc phục chỗ rỉ. |
|
Cầu chuyển động giật giật. |
Có khí nén trong dầu. Thiếu dầu. |
Xả khí. Kiểm tra và bổ xung dầu. |
|
Khi mở van khí, cầu không lên. |
Cao su làm kín của van khí bị hỏng. |
Thay thế van khí. |
Lưu ý trong quá trình sử dụng cầu nâng 1 trụ ấn độ
Nên làm:
- Lau dọn khu vực xưởng quanh nơi làm vịêc của cầu thường xuyên (Phớt làm kín của cầu và mặt piston có thể bị hỏng do bụi và cát dính vào)
- Bảo dưỡng và kiểm tra thường xuyên mức dầu trong bình chứa dầu (nếu mức dầu phù hợp mà không kiểm tra bảo dưỡng thường xuyên thì có thể bị air trong xylanh, cầu lên giật).
- Thường xuyên kiểm tra rò rỉ trên hệ thống (nếu rò rỉ, hệ thống sẽ bị sụt áp và cầu bị vận hành sai chức năng).
- Dùng bộ tách nước khí nén cho hệ thống để tránh thoái hoá dầu.
Không nên:
- Không được đặt tải lên một bên của dầm. Nếu vi phạm điều này có thể gây tai nạn nghiêm trọng, rơi xe và cong piston, hỏng xylanh,…
- Không được dùng chung đồng thời nguồn khí nén với thiết bị tiêu thụ nhiều khí nén khác. Khí nén bị giảm áp khi thiết bị này hoạt động có thể làm cho cầu bị tụt khi đang nâng lên.
- Không được đổ kín bên ngoài ống dầu bằng bê tông, chỉ được đổ bằng cát. Nếu vi phạm điều này, ống thép giãn nở nhiệt sẽ gây ứng suất và vỡ ống khi nhiệt độ thay đổi.
Những thông tin về cầu nâng 1 trụ Ấn Độ hi vọng mang đến cho các bạn nhiều kiến thức hữu ích.
Ngoài ra các bạn cũng có thể tham khảo thêm về hệ thống thiết bị chuyên phục vụ cho sửa chữa và chăm sóc xe ô tô ở những bài viết dưới đây:
>>> Cầu nâng ô tô chuyên dùng cho các Garage
>>> Thiết bị sửa chữa dành cho các hãng xe
>>> Cầu nâng cắt kéo
>>> Cầu nâng 2 trụ nào tốt nhất
>>> Cầu nâng rửa xe ô tô nào tốt nhất hiện nay
Liên hệ Hostline :0902 279 858 để nhận được tư vấn chuyên sâu về thiết bị và quy trình mở xưởng sửa chữa ô tô
-----------------------------------------------------------------------------------
Ghi rõ nguồn gốc khi chia sẻ hoặc sao chép lại bài viết
" Công ty cổ phần thiết bị Tân Phát "

Hỗ trợ
Hướng dẫn







Bình luận
Để lại bình luận